7-0045 宮津市滝馬 庭付き平屋戸建て物件
| 住所 | 宮津市滝馬96-8 | 価格 | 600万円 | 土地権利 | 所有権 |
|---|---|---|---|---|---|
| 地目 | 宅地 | 土地面積 | 217.88㎡(65.90坪) | 地勢 | 平坦 |
物件詳細情報
| 建物種類 | 居宅 |
|---|---|
| 建物構造 | 木造瓦葺平家建 |
| 建物面積 | 54.82㎡ |
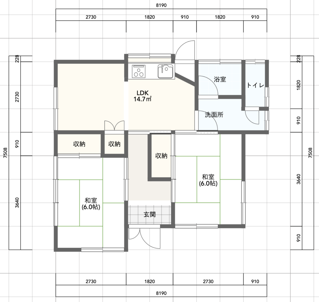
| 間取り | 2LDK |
| 築年数 | 昭和43年5月30日 |
| 都市計画 | 区域内 |
| 用途地域 | 第一種中高層住居専用地域 |
| 私道負担 | 無し |
| 交通 | 「宮津・天橋立インター」バス停 徒歩5分 |
| 建ぺい率 | 60% |
| 容積率 | 200% |
| 学区 | 宮津小学校、宮津中学校 |
| 他の制限 | |
| 特記事項 | ・土砂災害警戒区域 / 土石流に該当します。 ・洪水浸水想定区域 / 1.0m〜2.0mに該当します。 |
| 現状 | 空家 |
|---|---|
| 引渡日 | 要相談 |
| 引渡条件 | 現状有姿(引き渡し前に草刈りとクリーニングをいたします) |
| 接道状況 | 東側:宮津市道(幅員3.9m)、南側:宮津市道(幅員3.9m)に接道しています。 |
| 間口 | 東側:約14m、南側:約10m |
| 駐車場 | 敷地内に2台(縦列駐車にて) |
| 上水道 | 接続済 |
| 下水道 | 接続済 |
| 給湯 | ガス給湯器 |
| 設備 | エアコン3台(2023年3月設置)、ガス給湯器(2023年3月設置)、倉庫付き、庭付き |
| 備考 | ・敷地内の草木の落葉や剪定の管理は、自らの負担にて行ってください。 ・原則として自治会に加入とし、地域活動へもできる限り参加してください。 |
| 取引形態 | 仲介 |
| 情報更新日 | 2026/01/23 |
| 次回更新予定日 | 2026/02/06 |
